Pagrindinės Recom 3SR NEW vėdinimo įrenginio charakteristikos:
- rotacinis šilumokaitis – efektyviai grąžina drėgmę į patalpas.
- Baltai dažytas 40 mm korpusas – užtikrina sandarumą.
- Efektyvumas iki 89% – įrenginys tinkamas A++ klasės namams.
- Maksimalus oro srautas 310 m³/val – tinkamas būstams iki 130 m².
- Integruotas valdymas telefonu (valdymo automatika + WIFI modulis) – naudojimui nebūtinas interneto ryšys, pultas ar papildomi laidai.
- Ypač žemos SFP (savitoji ventilaitorių galia) reikšmės – indikuoja, kiek elektros energijos sunaudoja ventiliatoriai, lyginant su pakeičiamo oro tūriu.
- Rekuperatoriui nereikalingas kondensato nuvedimas.
Recom 3SR vėdinimo įrenginio techniniai duomenys:
- ŠILDYMO TENAS: integruotas 1,2 kW (0-10V) elektrinis šildytuvas.
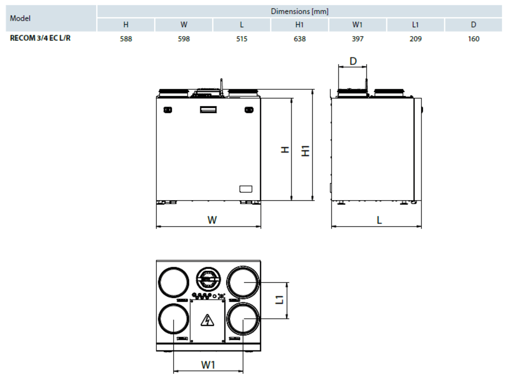
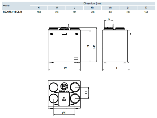
- IŠMATAVIMAI: 598x515X588 mm (PxGxA).
- SVORIS: 67 kg.
- PAJUNGIMAS: 4xØ160 mm.
- KORPUSAS: dažytas cinkuotas plienas, apšiltintas 40 mm mineralinės vatos sluoksniu.
- FILTRAI: G4 ištraukiamo oro ir F7 lauko oro filtras komplekte.
Pagrindinės Recom 3SR vėdinimo įrenginio funkcijos:
- savaitinis laikrodis,
- sinchroniniai, elektroniniu būdu komutuojami EC ventiliatoriai,
- individualiai nustatomi trys ventiliatorių greičiai,
- boost funkcija.
Kilmės šalis: Vokietija.
Integruotas WiFi valdymas telefonu.
Papildomai galima įsigyti valdymo pultą lietimui jautriu ekranu S25, laidinį S22 ar belaidį S22 WIFI.
Rekuperatorius efektyviausias būstams iki 130 m2.
Būtina rekuperatoriaus oro padavimo pusė.
***
PRIEDAI
Rekuperatorius turi integruotą valdymą telefonu. Norint valdyti pulteliu, būtina jį įsigyti papildomai.
Programuojamas valdymo pultas su spalvotu ekranu BLAUBERG/RECOM














Atsiliepimai
Atsiliepimų dar nėra.